
S radostí sdílíme úspěch projektu PORT7 pražské čtvrti Holešovice, který letos obdržel ocenění Národního centra Stavebnictví 4.0 v soutěži Stavba roku
Vize naplněná: PORT7 v kostce
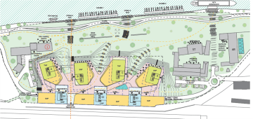
Projekt PORT7, navržený Jiřím Havrdou a jeho týmem v DAM architekti, se stal symbolem inovace a udržitelnosti. Brownfield je realizován mezi Trojským mostem a mostem Barikádníků. Ze severu je území vymezeno Vltavou, z jihu tratěmi ČD – nádraží Holešovice. Tři administrativní budovy o celkové ploše 35 642 m2 doplňují obchody, restaurace, kavárny, bistra a drobné služby. Nedílnou součástí komplexu bude veřejný park s promenádou, lavičkami, cyklostezkou a různými sportovišti o celkové rozloze 2 hektary.
Nový projekt Port7 společnosti Skanska v pražských Holešovicích byl úspěšně zkolaudován v březnu 2023 a do tří dokončených kancelářských budov se již nastěhovali první nájemci. K novým nájemcům patří třeba Scott.Weber Workplaces, finanční skupina Direct nebo společnost Wikov Industry.

Architektonický skvost: ruka sahající k vodě
Architektonické uspořádání PORT7 je originální, jedinečné a poutavé. Jiří Havrda popisuje celkový půdorys projektu jako otevřenou ruku sahající k vodě. Design čerpá inspiraci z blízkosti železnice a unikátní industriální minulosti lokality, na niž navazuje bývalý areál výroby prefabrikátů Wolf-Prefa v Holešovicích.
“Na počátku projektu v roce 2016 jsme zakládali pomyslnou urbanictickou osu SEVER-JIH. Výrazné linie železničních tahů, které se rozevírají na severozápad a severovýchod, nás přivedly k úvaze, že na opačném konci, tedy na jihu u Vltavy, by měl být vybudován urbanisticky výrazný prvek, který bude tvořit jakousi vstupní bránu do navazující vertikály bubenského území, “popisuje Jiří Havrda.

Udržitelnost v jádru: LEED Platinum, WELL Platinum
Jedním z výrazných prvků PORT7 je jeho závazek k udržitelnosti. Slouží jako dlouhodobě udržitelný projekt, který minimalizuje stavební odpad a zbavuje místo znečištění spojeného s průmyslovým využitím v minulosti. PORT7 usiluje o získání certifikátů LEED Platinum, WELL Platinum a WELL Health-Safety Rating.
Přínosem certifikace je mezinárodně porovnatelná úroveň daného projektu. Je to známka úrovně „vyspělosti” navrhovaných řešení. V současné době považuji u veškerých nových projektů snahu o udržitelnost – jak ze strany investora, tak i architekta – za zcela samozřejmou a nutnou, je to dnes již nedílná součást standardu a kvality každé stavby.
Závazek projektu k ekologickému přístupu sahá až do provozní fáze, kde dosahuje snížení spotřeby energie a pitné vody o 50 % ve srovnání s běžnou kancelářskou budovou stejné velikosti. Uhlíková stopa byla pečlivě vypočítána pro období výstavby a následně pro 60 let provozu, což podtrhuje transformaci bývalého brownfieldu v nově udržitelnou část města.


Boj s přehříváním města: výzva designu překonána
PORT7 představoval jedinečnou výzvu v bezproblémovém spojení urbanismu s krajinářskou architekturou, rekonstrukcemi a novými stavbami. Jak zdůrazňuje Jiří Havrda: "Vytvoření nového pěšího propojení podchodem z Holešovického nádraží do areálu PORT7 přináší návštěvníkům komfortní přístup přes nový park až k Vltavě. Má to být takové světlo na konci tunelu, které se vám otevře, když půjdete z města směrem k řece".
Ke snížení přehřívání pomáhají např. zelené střechy v kombinaci extenzivní a intenzivní zeleně, dále také návrhy pěších cest formou mlatových pěšin na místo tvrdých zpevněných povrchů, a v neposlední řadě i nová výsadba vzrostlé zeleně a trávníků, které v původním brownfieldu zcela chyběly.
Projekt nejen zachovává průmyslové dědictví místa, ale zároveň přináší inovativní designové prvky, jako jsou fasády připomínající vlnité plechy a speciální grafické designy v infosystému.


Vize pro budoucnost: zachování, inovace a propojení

PORT7 představuje budoucnost, která zahrnuje revitalizaci brownfieldu a jeho proměnu v moderní část města. Plány počítají s přeměnou bývalého hospodářského dvora "U Šimků" na wellness a saunové centrum, a také s rekonstrukcí původní haly Armovny na sportovní lofty. Projekt nazapomíná ani na zelené plochy, vytvářející místa k odpočinku.
Na místě dřívějšího nepřístupného brownfieldu tak vzniká velký veřejný park dostupný podchodem od nádraží Holešovice. Podél řeky již vznikla nová promenáda s názvem Náplavka 2.0. Port7 je rovněž navržený tak, aby přispíval ke snižováním přehřívání města.




Hlavní architekt J. Havrda | DAM Architekti
Spoluautoři: Š. Hora, R. Szilvassy, O. Novák, V. Palm | DAM Architekti
Projektant BIM a HIP: A. Heřmánek a Z. Ransdorf | AED Project
Investor: M. Machů, J. Hes | Skanska Property ČR
Realizace: O.Plucha | Skanska a.s.
Kolaudace: 03/2023
Foto: Boys Play Nice
Vizualizace: XTEND DESIGN


